S1.507 LOTE 1 – LOCAL COMERCIAL Nº 1 DE 91,05 M² EN CAMPOSOTO (CÁDIZ)

Fecha de inicio
Fecha de fin
Tipo
Subasta
Estado
Terminada
Ubicación
CAMPOSOTO, Cádiz
Puja máxima
-
Subasta terminada
Valoración
150.000,00 €
Tipo mínimo
0,00 €
Depósito de garantía
1.875,45 €
Descripción
En virtud de la diligencia de ordenación emitida por el Juzgado, se acuerda la ampliación de la subasta hasta el viernes, 23 de enero de 2026 a las 12:00 horas, a fin de permitir que la Oficina Judicial pueda dar la oportuna publicidad. 

Local comercial en planta baja – Calle Mineras nº 3, Local nº 1 – San Fernando (Cádiz)
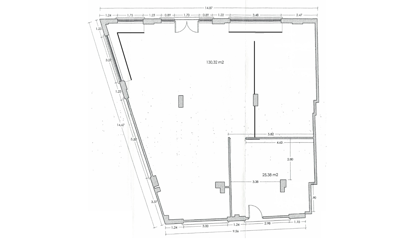
Se subasta un local comercial urbano, situado en la planta baja del edificio conocido como Los Enebros, actualmente ubicado en la Calle Mineras nº 3, en la zona de Camposoto, término municipal de San Fernando (Cádiz). El inmueble está identificado como Local nº 1 y cuenta con una superficie construida de 91,05 m².

Entorno y localización
  • Zona residencial consolidada: Camposoto es una de las áreas más dinámicas de San Fernando, con alta densidad de población y constante actividad comercial.
  • Ubicación estratégica: El local se encuentra en esquina, con doble frente a la Calle Mineras y la Plaza del Martinete, lo que le proporciona excelente visibilidad y accesibilidad.
  • Entorno urbano activo: Rodeado de viviendas, comercios de proximidad, centros educativos y servicios públicos, lo que garantiza flujo peatonal y potencial de clientela.
  • Conectividad: Buen acceso desde vías principales y proximidad a zonas de expansión residencial, lo que refuerza su atractivo para negocios de atención directa al público.


Características del inmueble

  • Distribución rectangular y fachada directa a calle, ideal para escaparate o acceso comercial.
  • Entorno abierto y luminoso, gracias a su orientación hacia la plaza y la calle.

Oportunidad de inversión
Este inmueble representa una excelente oportunidad para adquirir un local comercial en planta baja con visibilidad directa y entorno urbano consolidado, ideal para actividades de comercio, servicios, atención al público o despacho profesional.

Su ubicación en Camposoto, una zona en crecimiento dentro de San Fernando, lo convierte en una opción estratégica para emprendedores, inversores o empresas que busquen implantarse en un entorno residencial con alta demanda.

Observaciones:
Los locales objeto de subasta (Lote 1 Finca Nº 50.901 y Lote 2 Finca Nº 50.902) se encuentran unidos físicamente, constando cada uno con su correspondiente finca registral.

Ambos locales están arrendados desde el 1 de septiembre de 2025 hasta el 15 de mayo de 2028. Si al finalizar dicho contrato ninguna de las partes comunica a la otra, con al menos dos meses de antelación, su voluntad de no renovarlo, el contrato se prorrogará automáticamente.

La renta mensual asciende a 775 € más IVA, pagadera por mensualidades anticipadas dentro de los primeros cinco días de cada mes, reteniendo el arrendatario la cantidad correspondiente en concepto de IRPF. La renta se actualizará anualmente el día 1 de junio conforme al IPC.

Son de cuenta del arrendatario los gastos de agua, luz, gas y teléfono. Se ha constituido una fianza equivalente a dos mensualidades, por importe de 1.500 €.

La valoración que consta en el plan de liquidación asciende a 150.000,00 €
Hipoteca Unilateral a favor de la AEAT con un saldo vivo de 37.508,90 €

Información adicional
Urbana: NÚMERO UNO. Local comercial situado en planta baja del edificio en esta Ciudad en Camposoto, denominado Edificio los Enebros, hoy calle Mineras, número tres. Esta señalado con el número uno.

Ocupa una superficie construida de noventa y un metros, cinco decímetros cuadrados.

LINDA: frente, con calle Mineras; derecha, entrando, con Plaza del Martinete; izquierda, con local comercial número dos y por el fondo, con Plaza del Martinete.


Nota informativa:
Accediendo como usuario registrado en la web de Viasubasta podrá consultar documentación adicional sobre cada subasta, incluyendo, nota simple, auto aprobando plan de liquidación, DIOR solicitando ampliación plazo

Referencia catastral
9976601QA4397F0001OH
Registro de la propiedad
REGISTRO DE LA PROPIEDAD Nº 2 DE SAN FERNANDO
Nº finca
Nº 50.901
Porcentaje de propiedad
100 %
Superficie construida
91,05 m2
Datos del expediente
Expediente: DÑA. M. J. LEPIANI G.
Nº expediente: Concurso Voluntario 131/2012
Entidad: Juzgado de lo Mercantil Nº 1 de Cádiz
Condiciones
1. La Administración Concursal designa como entidad especializada para la realización de los activos titularidad de los concursados Dña. M. J. Lepiani G. a través de subasta extrajudicial a la mercantil Hermes Capital Europa, S.L.

La subasta extrajudicial de los activos se llevará a cabo con sometimiento exclusivo a las condiciones previstas en las Reglas Especiales y conforme a las reglas de la entidad especializada y, en lo que resulte de aplicación, a las disposiciones del Texto Refundido de la Ley Concursal y de la Ley de Enjuiciamiento Civil.

2. La venta en subasta pública extrajudicial se llevará a cabo online (Internet) a través de la web www.viasubasta.com propiedad de la entidad especializada.

Las bases concretas de la subasta se publicitarán a través de dicha página web, así como a través de cualesquiera otros medios complementarios de publicidad que considere convenientes la referida entidad.

a) Fecha y hora de inicio de la subasta:
Lunes, 24 de noviembre de 2025, a las 12:00 horas.
b) Fecha y hora de finalización de la subasta:
Miércoles?, 24 de diciembre? de ?2025, a las 12:00 horasEn virtud de la diligencia de ordenación emitida por el Juzgado, se acuerda la ampliación de la subasta hasta el viernes, 23 de enero de 2026 a las 12:00 horas, a fin de permitir que la Oficina Judicial pueda dar la oportuna publicidad.

3. El periodo para la presentación de las ofertas será de TREINTA (30) DÍAS NATURALES, esto es, de lunes a domingo, incluidos festivos, desde la apertura del periodo apto para la licitación.

4. Se establece la ampliación de la hora de finalización de la subasta por periodos de TRES (3) minutos sucesivos en los casos en que se presenten ofertas en ese periodo inmediato anterior a la misma o durante alguna de sus prórrogas. En este caso, la subasta concluirá cuando no se reciban ofertas de compra durante el último periodo de ampliación de la subasta.

5. La venta de los activos se realizará libre de cargas y gravámenes, siendo por cuenta de la compradora todos los gastos e impuestos que puedan producir la transmisión de los bienes.

La cancelación de la anotación de concurso y las cargas/gravámenes se realizará de manera posterior a la transmisión por mandamiento judicial a instancia de la Administración Concursal.

6. Se entenderá aceptado expresamente por los ofertantes el estado físico y jurídico en que se encuentren los bienes objeto de subasta desde el momento de su intervención en la misma, sin que pueda revisarse el precio o desistir de la venta por ninguna circunstancia, teniendo las ofertas realizadas carácter de irrevocables.

Todas las ventas realizadas al amparo de las Reglas Especiales se realizarán como cuerpo cierto y en el estado en que se encuentren los bienes, renunciando el comprador a cualquier derecho de saneamiento o evicción por cuanto la Administración Concursal no puede responder del estado de los mismos. Para ello, los interesados podrán examinar los mismos y realizar las comprobaciones oportunas sobre su estado, con anterioridad a realizar la oferta de compra. Asimismo, se especifica expresamente que atendiendo al carácter liquidatorio de las realizaciones de bienes, todos los gastos derivados de las mismas se realizarán con cargo al comprador.

De este modo, habrá de estarse a la inspección e investigación personal de los licitadores, en tanto los elementos del activo se transmitirán como cuerpo cierto y a tanto alzado, con aceptación y asunción expresa, sin reservas ni excepciones y asumida como riesgo empresarial y/o objetivo, de la situación física, jurídica y, en su caso, urbanística y medioambiental, y con renuncia expresa al saneamiento por evicción y vicios ocultos y a reclamaciones de toda naturaleza contra la concursada y la Administración Concursal sobre su estado, inclusive de conservación o funcionamiento.

7. La subasta extrajudicial se establece SIN SUJECIÓN A TIPO MÍNIMO, es decir, no se establece importe mínimo de partida en las subastas.

8. Las sobrepujas deberán ser por un importe mínimo respecto a la puja anterior, es decir, se establece tramos de puja de QUINIENTOS EUROS (500,00 €).

9. Para participar en las subastas se exigirá la prestación de una garantía o depósito de cada lote que se aplicará al precio final, de acuerdo con la siguiente tabla:


LOTE VALORACIÓN DEPÓSITO
LOTE 1 – LOCAL COMERCIAL Nº 1 EN CAMPOSOTO (CÁDIZ)

Registro de la Propiedad nº 2 de San Fernando, Finca Registral: 50.901
37.508,90 € 1.875,45 €
La cuenta para la prestación de la garantía es la cuenta de consignaciones de Hermes Capital Europa, S.L. de la entidad bancaria Banco Santander y número ES87 0049 4629 5224 1714 2554 detallando en el concepto: Subasta MJLEPIANIG LOTE 1.

No se validará a ningún postor cuyo depósito no esté en la cuenta de consignaciones. Para el caso de que algún postor se registre el último día, se deberá realizar una transferencia de forma inmediata.

Los acreedores con crédito privilegiado reconocido en el concurso no tendrán que efectuar dicha consignación si deciden participar en la subasta del bien afectado por su privilegio especial.

Salvo para los acreedores con crédito privilegiado, no se validará el usuario del ofertante y, por consiguiente, no podrá formalizar sus pujas hasta no haber ingresado el importe del depósito al número de cuenta designado en el apartado anterior y registrado en la subasta. El justificante de transferencia se adjuntará durante el proceso de registro del Postor en la Subasta.

Finalizada la subasta, se liberarán o devolverán las cantidades consignadas por los postores excepto lo que corresponda al mejor postor, que se reservará en depósito como garantía del cumplimiento de su obligación y, en su caso, como parte del precio de venta.

10. Será admisible la cesión de remate por el acreedor privilegiado.

11. La dirección de correo electrónico que se designe a efectos de comunicaciones por los usuarios oferentes en la página web a través de que se realice la subasta será plenamente válida y eficaz a todos los efectos de cualesquiera notificaciones al usuario.

Serán válidas cualesquiera notificaciones efectuadas a los usuarios que hayan concurrido a la subasta pública online en la dirección de correo electrónico que hubieran designado a efectos de recibir comunicaciones relativas a la subasta a la que libre y voluntariamente han participado, ya provengan dichas notificaciones de la Administración Concursal, ya de la entidad especializada que lleve a cabo el desarrollo de la subasta pública online.

12. En caso de que el mejor postor no abone el precio completo en el plazo de QUINCE (15) DÍAS NATURALES, (desde la entrega y firma del acta de aprobación de remate por el Administrador Concursal) no se adjudicará el bien al siguiente postor, sino que, previa notificación de este hecho a los restantes postores, se abrirá un nuevo proceso de subasta por la entidad especializada con libre concurrencia de postores por plazo de quince días.

Si el mejor postor designado adjudicatario de los bienes objeto de subasta no concurriese al otorgamiento de los documentos públicos o privados que resulten necesarios para la tradición de los mismos y pago del precio de remate, perderá el depósito efectuado, y la Administración Concursal podrá, con independencia de su derecho a exigir las responsabilidades que procedan por incumplimiento del antedicho mejor postor.

Así mismo y además de lo anterior, el oferente que resultare adjudicatario del bien haya incumplido, deberá satisfacer íntegramente los honorarios de gestión devengados por Hermes Capital Europa, S.L.

13. El otorgamiento por la Administración Concursal de los documentos públicos precisos para la consumación de la venta se entenderá aprobado judicialmente a los efectos de lo establecido en el artículo 641.4 de la Ley de Enjuiciamiento Civil sin necesidad de resolución expresa del Juzgado.

No obstante, tan pronto como se consume la realización del bien, la Administración Concursal podrá ponerlo en conocimiento del Juzgado, incluyendo informe de la entidad especializada designada sobre el proceso de subasta.

14. La Administración Concursal, concluida la subasta sin la realización del bien, o por entender que el resultado de esta fuere contrario al interés del concurso, podrá repetir una o más veces el proceso de venta en subasta pública extrajudicial, a su elección en preservación de los intereses del concurso.

15. Impuestos. - En todo caso, las adjudicaciones o adquisiciones estarán condicionadas al pago total del precio incrementado con los impuestos que resulten aplicables, teniendo en cuenta, cuando proceda, que la repercusión del IVA se adaptará a la forma que determina la Ley 77/2012, de 29 de octubre, que decreta la inversión del sujeto pasivo.

Gastos. – El comprador asumirá todos los gastos, tasas e impuestos que origine la transmisión y levantamiento de las cargas de los bienes adjudicados, como notaría, Registro de la Propiedad, Registro Bienes Muebles, etc. Igualmente, el comprador asumirá las cuotas pendientes de Impuesto sobre Bienes Inmuebles (IBI), tasas municipales, comunidad de propietarios, entidad urbanística de conservación, así como las que sean por cuenta legalmente del vendedor como el Incremento de Valor de los Terrenos de Naturaleza Urbana (IIVTNU).

Honorarios.– Los honorarios profesionales de Hermes Capital Europa, S.L. (Viasubasta) como entidad especializada corresponden al 5% sobre el valor de adjudicación más el correspondiente impuesto sobre el valor añadido (IVA), que será atendido por la parte compradora, sea o no éste el acreedor con privilegio especial, en el momento de otorgamiento de escritura pública de compraventa o en el acto de presentación de la factura de venta de los lotes adjudicados, no pudiendo la entidad especializada reclamar retribución alguna a la Administración Concursal. Los honorarios de la entidad especializada no se detraerán de la puja efectuada, sino que deberán abonarse aparte.

16. En todo lo no previsto se aplicará supletoriamente las normas contenidas en el Texto Refundido de la Ley Concursal y la Ley de Enjuiciamiento Civil.

Gastos, impuestos y cargas
Deuda de IBI pendiente a fecha 12/01/2026: 6.718,19 €

Ejercicio Periodo Imp. Pend.
2.023 ANUAL 1.591,21 €
2.020 SEGUNDO SEMESTRE 288,90 €
2.020 PRIMER SEMESTRE 290,37 €
2.019 PRIMER SEMESTRE 280,64 €
2.019 SEGUNDO SEMESTRE 278,83 €
2.018 PRIMER SEMESTRE 287,83 €
2.018 SEGUNDO SEMESTRE 286,01 €
2.017 PRIMER SEMESTRE 294,77 €
2.017 SEGUNDO SEMESTRE 292,98 €
2.016 PRIMER SEMESTRE 301,44 €
2.016 SEGUNDO SEMESTRE 299,61 €
2.015 SEGUNDO SEMESTRE 306,92 €
2.014 PRIMER SEMESTRE 318,12 €
2.014 SEGUNDO SEMESTRE 315,16 €
2.013 ANUAL 316,99 €
2.012 ANUAL 329,96 €
2.012 ANUAL 326,80 €
2.011 ANUAL 311,65 €

Deuda de comunidad de propietarios a fecha 15/01/2026: 558,93 €
  • Año 2023
    • Cuotas ordinarias de septiembre a diciembre: 42,24 € (=10,56 * 4)
    • Cuotas extraordinarias de agosto a diciembre: 74,95 € (=14,99 * 5)
  • Año 2024
    • Cuotas ordinarias de enero a junio 63,36 € (=10,56 * 6)
    • Cuotas extraordinarias de enero a diciembre 179,88 € (=14,99 * 12)
  • Año 2025
    • Cuotas ordinarias de julio y agosto 21,12 € (=10,56 * 2)
    • Cuotas ordinarias de septiembre a diciembre 57,96 € (=14,49*4)
    • Cuotas extraordinarias de mayo a diciembre 89,94 € (=14,99 *6)
  • Año 2026
    • Cuota ordinaria enero 14,49 €
    • Cuota extraordinaria enero 14,99 €



Impuestos. - En todo caso, las adjudicaciones o adquisiciones estarán condicionadas al pago total del precio incrementado con los impuestos que resulten aplicables, teniendo en cuenta, cuando proceda, que la repercusión del IVA se adaptará a la forma que determina la Ley 77/2012, de 29 de octubre, que decreta la inversión del sujeto pasivo.


Gastos. – El comprador asumirá todos los gastos, tasas e impuestos que origine la transmisión y levantamiento de las cargas de los bienes adjudicados, como notaría, Registro de la Propiedad, Registro Bienes Muebles, etc. Igualmente, el comprador asumirá las cuotas pendientes de Impuesto sobre Bienes Inmuebles (IBI), tasas municipales, comunidad de propietarios, entidad urbanística de conservación, así como las que sean por cuenta legalmente del vendedor como el Incremento de Valor de los Terrenos de Naturaleza Urbana (IIVTNU).


Honorarios.– Los honorarios profesionales de Hermes Capital Europa, S.L. (Viasubasta) como entidad especializada corresponden al 5% sobre el valor de adjudicación más el correspondiente impuesto sobre el valor añadido (IVA), que será atendido por la parte compradora, sea o no éste el acreedor con privilegio especial, en el momento de otorgamiento de escritura pública de compraventa o en el acto de presentación de la factura de venta de los lotes adjudicados, no pudiendo la entidad especializada reclamar retribución alguna a la Administración Concursal. Los honorarios de la entidad especializada no se detraerán de la puja efectuada, sino que deberán abonarse aparte.


Documentos
Catastro.pdf
Datos catastrales.pdf
Informe mapas.pdf
Datos y ubicación del activo
Dirección
Calle Mineras,, 3
Complemento de dirección
Local 1
Código Postal
11120
Población
Camposoto, San Fernando
Provincia
Cádiz